Bed icon  5  Bath icon  6

5 bed Detached Sold Subject to Contract
Boyton Road, Hollesley, Woodbridge
Guide Price £725,000

  • arrow icon Four/ Five Bedrooms
  • arrow icon Five Reception Rooms
  • arrow icon Five Bathrooms
  • arrow icon Rural views to front and rear
  • arrow icon 0.5 Acre Plot
  • arrow icon Sweeping driveway providing off road parking for 6+ vehicles
  • arrow icon Sauna, Summerhouse, Workshop, Greenhouse and Log Store in rear garden
  • arrow icon Underfloor Heating
  • arrow icon 28 Reception Hall
  • arrow icon 26 Sitting Room with vaulted ceilings

Mortimers of Woodbridge are delighted to offer for sale this immaculately presented and generously extended four/five bedroom detached chalet bungalow in the popular Suffolk Coastal village of Hollesley. The property sits centrally within a 0.5acre plot, boasting countryside views over fields to front and rear.

Once a modest two bedroom bungalow, this now extensive family home offers accommodation over two levels, with the additional oak framed, three bay cart lodge providing a self-contained Studio Annex for visiting guests or a work from home space. Underneath there is covered parking for three vehicles along with ample parking via the sweeping driveway.

The location is ideally situated within walking distance of Shingle Street, one of Suffolk's finest beauty spots, with further popular nearby local walking locations including Sutton and Hollesley Heaths and Rendlesham Forest.

The village itself offers a range of local amenities, a mini-supermarket, primary school, Poplar Park riding school, and a large recreation ground. The village is also home to The Suffolk Punch Trust, whilst the historic market town of Woodbridge is only a 15 minute drive away, with both Melton and Woodbridge train Stations providing with regular links to London Liverpool St, via Ipswich.

* Four/ Five Bedrooms
* Five Reception Rooms
* Five Bathrooms
* Half an acre Plot
* Rural views to front and rear
* Three Bay Oak Framed Cart lodge
* Sweeping driveway providing off road parking for 6+ vehicles
* Sauna, Summerhouse, Workshop, Greenhouse and Log Store in rear garden
* 28' Reception Hall
* 26' Sitting Room with vaulted ceilings
* Fibre Internet - 1800 gbps (subject to change)
* Underfloor Heating


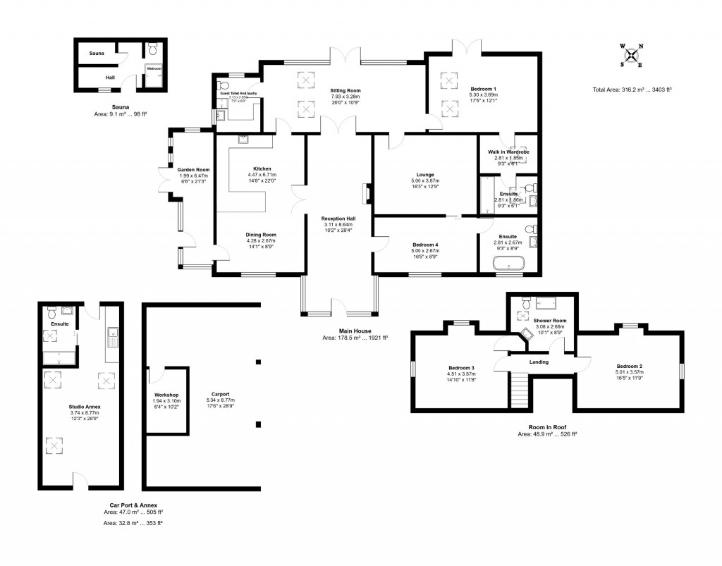
Accommodation

GROUND FLOOR

Entrance Porch
Enter via exposed oak entrance porch, with wrap around windows overlooking front aspect, opening through to spacious Reception Hall, with vaulted ceiling and stair case leading to first floor, and galleried landing over.

Reception Hall - 28' 4 x 10' 2
Underfloor heating, feature 10kw wood burner, double doors opening to sitting room, kitchen/ diner and single door to bedroom 4.

Kitchen/ Diner - 22' 0 x 14' 8
Window to front aspect, single doors through to sitting room and garden room, along with double doors back out to the reception hall. Range of base and eye level wall units with marble worktops, breakfast bar, oil fired AGA Cooker plus separate electric induction hob with extractor hood over and further integrated electric oven, space and plumbing for washing machine, integrated eye level microwave, space for freestanding American style fridge/ freezer and underfloor heating.

Garden Room - 21' 3 x 6' 6
South westerly facing windows overlooking side aspect with single and double doors leading out to side garden.

Sitting Room - 26' 0 x 10' 9
Spacious, light, vaulted room benefiting from floor to ceiling windows overlooking the rear garden, with additional skylights above, underfloor heating, internal double doors leading from reception hall and single doors to laundry room and lounge, along with a hidden door to main bedroom via an opening within the bookshelf. Double doors opening out to rear garden.

Laundry - 8' 8 x 7' 0
Door leading from sitting room. Low level wc, wall mounted shower with wet room draining floor. Space and plumbing for washing machine, with tumble dryer space above. Base and wall mounted storage units with oak worktops and integrated sink.

Lounge - 16' 5 x 12' 9
Door leading from sitting room and further door through to Bedroom 4. Wall mounted radiator, wall mounted shelving/ storage and television unit.

Bedroom 1 - 17' 5 x 12' 1
Hidden doorway built into the bookshelf from sitting room, vaulted ceiling with skylights over and double doors leading out to rear garden, underfloor heating, door through to walk in wardrobe.

Walk in wardrobe - 9' 3 x 6' 1
Wall mounted radiator, underfloor heating, vaulted ceiling with skylight over, built in wardrobes and door to en-suite shower room.

En-Suite Shower Room - 9' 3 x 6' 1
Vaulted ceiling with skylight over, wall mounted heated towel radiator, underfloor heating, walk in shower with glass screen divide, wet room draining floor and rainfall effect shower over, low level wc, and wall mounted hand wash basin within vanity storage cupboards.

Bedroom 4 - 16' 5 x 8' 9
Door leading from reception hall and secondary door from lounge, with further door through to en-suite bathroom. Window to front aspect, underfloor heating.

En-Suite Bathroom - 9' 3 x 8' 9
Frosted window to front aspect, three piece suite comprising of freestanding curved bath, low level wc, wall mounted hand wash basin, storage unit, wall mounted radiator.

FIRST FLOOR

Galleried landing
With stairs leading from ground floor, overlooking reception hall, doors off to;

Bedroom 2 - 16' 5 x 11' 9
Windows to side and rear aspect, wall mounted radiator and eves storage cupboards.

Bedroom 3 - 14' 10 x 11' 8
Windows to side and rear aspect, wall mounted radiator and eves storage cupboards.

Shower Room - 10' 1 x 8' 9
Three piece suite comprising of walk in shower cubicle with wall mounted shower over, low level wc and wall mounted hand wash basin. Storage cupboards and skylight over.


OUTSIDE

To the front of the property the sweeping shingle driveway offers parking for 6+ cars quite comfortable, with areas of mature garden flanking both sides of the entrance.

Cart lodge - 28' 9 x 12' 3
Versatile oak framed cart lodge, with covered parking with three vehicles, and additional workshop (10' 2 x 6' 4) on the ground floor. The accommodation consists of a kitchen area, living space, twin bedroom and separate shower room, is also well suited as a self-contained work from home studio, or simply as a family/ guest accommodation, when required.

To the side of the property, the gardens continue with a secluded south facing Mediterranean style area leading out from the garden room, with patio and stepping stone pathway, set within a shale base with mature plants, olive trees, tropical plants. Opening through to rear garden.

The rear garden has a variety of areas, with a large, raised wooden decking leading from the sitting room, providing a walkway to the stand alone Sauna, with toilet, wet room facilities, and a space currently housing a treadmill.

Further outhouses include a large summer house, with electricity and water connected, a generous covered wood store, greenhouse and garden shed. With the rest laid mainly to lawn, with feature seating areas, firepit circle and mature shrubs and planters. To the rear, the low level hedge boarder allows views over farmland, with the forest in the distance.

Council Tax Band: D
Tenure: Freehold
Parking options: Driveway, EV Charging, Garage, Off Street, Undercroft
Garden details: Enclosed Garden, Private Garden
Electricity supply: Mains
Heating: Oil, Underfloor, Open Fire
Water supply: Mains
Sewerage: Mains

agent

For further details on this property please call us on:
01394 386 688

Download PDF Arrange Viewing BOOK A FREE VALUATION FREE MORTGAGE ADVICE
Floorplans For Boyton Road, Hollesley, Woodbridge
EPC For Boyton Road, Hollesley, Woodbridge
Nicholas Estates
Bucks
Beagle
Mortimers
Nicholas Estates
Bucks
Beagle
Mortimers
X

X

Viewing Request