Bed icon  2  Bath icon  1

2 bed Cottage For Sale
High Street, Wickham Market, Woodbridge
£235,000


Mortimers of Woodbridge are pleased to offer for sale this charming two bedroom cottage, offered with no onward chain, situated at the heart of the popular Suffolk market town of Wickham Market. The property benefits from two double bedrooms, a separate lounge and dining room and a 70ft garden to rear.

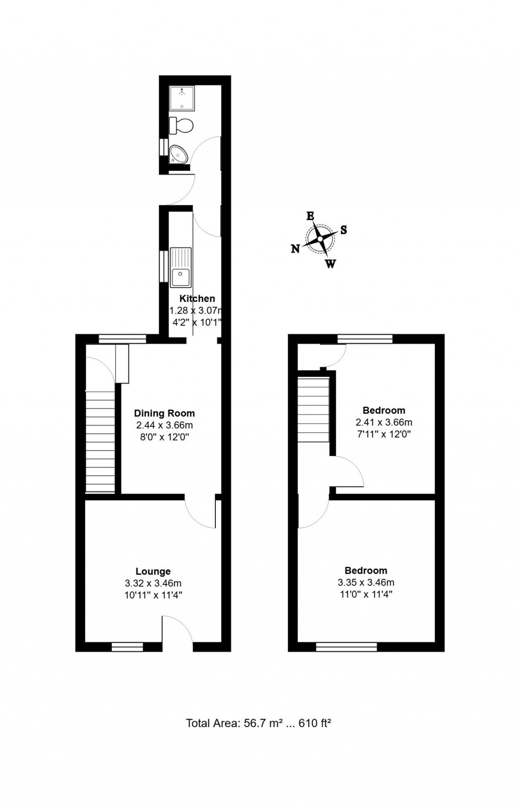
Accommodation

Lounge
Enter via entrance door to lounge, with window to front aspect, wall mounted radiator, feature fireplace surround with open hearth currently being used with a free standing electric fire, wall mounted radiator and door leading through to Dining Room.

Dining Room
Under stairs pantry style storage cupboard with light and electric, door opening to stairs leading to first floor, wall mounted radiator, window to rear aspect, opening leading through to kitchen.

Kitchen
Range of base level wall units, with inset stainless steel sink unit, space for free standing oven, space and plumbing for washing machine, wall mounted eye level storage cupboard and shelving providing space for microwave. Wall mounted boiler, window to rear aspect, door through to rear lobby.

Rear Lobby
External door leading to rear garden and internal door leading to Shower Room.

Shower Room
Three piece suite comprising corner shower cubicle, with tiles walls and wall mounted shower over, low level wc and wall mounted hand wash basin with tiled splashbacks, frosted window to rear aspect.

First Floor Landing
Stairs leading from ground floor and doors off to bedrooms

Bedroom
Window to front aspect, wall mounted radiator, loft access.

Bedroom
Window to rear aspect, wall mounted radiator, storage cupboard.

Outside
To the rear of the property there is an initial hard standing area that leads from the rear lobby door. The main section of the garden can be accessed via a passageway to a raised enclosed area. Laid mainly to lawn, with a garden storage shed, and paved patio area and red brick feature wall to rear.

Council Tax Band: A
Tenure: Freehold
Parking options: On Street
Garden details: Rear Garden

agent

For further details on this property please call us on:
01394 386 688

Download PDF Arrange Viewing BOOK A FREE VALUATION FREE MORTGAGE ADVICE
Floorplans For High Street, Wickham Market, Woodbridge
EPC For High Street, Wickham Market, Woodbridge
Nicholas Estates
Bucks
Beagle
Mortimers
Nicholas Estates
Bucks
Beagle
Mortimers
X

X

Viewing Request