Bed icon  4  Bath icon  2

4 bed House - Detached Sold Subject to Contract
Harrier Way, Stowmarket
Offers Over £450,000

  • arrow icon Four Double Bedrooms
  • arrow icon Extended Detached House
  • arrow icon Snug
  • arrow icon Kitchen Diner/ Family Room
  • arrow icon Utility Room
  • arrow icon En-Suite To Master Bedroom
  • arrow icon Water Softener
  • arrow icon Sealed Unit Double Glazed
  • arrow icon Gas Radiator Central Heating
  • arrow icon Single Garage And Off Road Parking For Two Vehicles

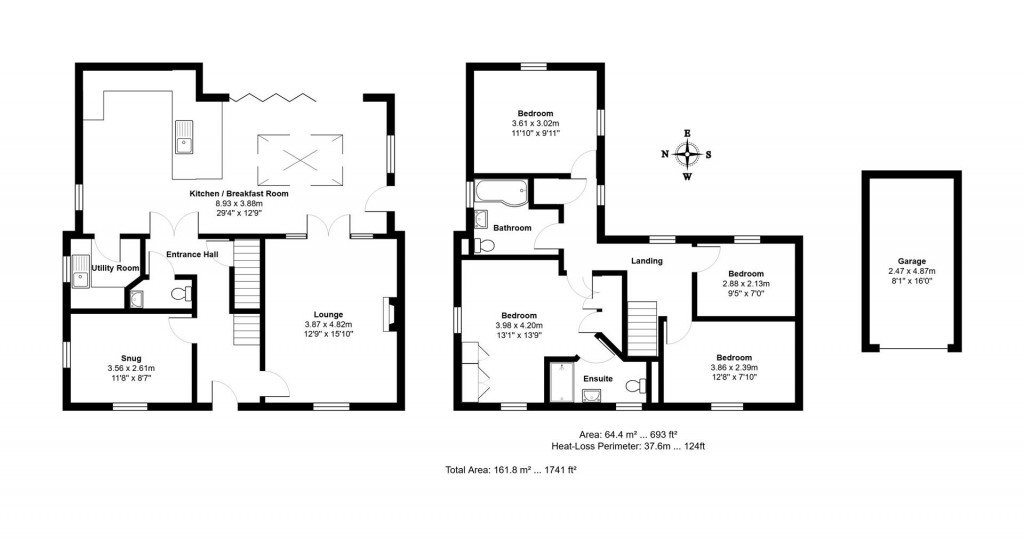
Entrance Hall

With stairs leading to first floor, understairs cupboard, laminate floor and radiator.

Snug

With windows to front and side and radiator.

Sitting Room

With window to front and glazed doors leading to kitchen diner/ family room, fireplace with marble heath and wooden surround, TV point, laminate floor and two radiators.

Kitchen Diner/ Family Room

With window to side, high level window to side, large skylight and Bi-folding doors to rear ideal for indoor/outdoor entertaining additionally illuminating the room with natural light, range of modern high and low units, oak breakfast bar, sink and drainer, Corrian worktops and splashbacks, space for range cooker, extractor hood and fan, space for American fridge freezer, integrated dishwasher and bins, cupboard housing boiler, door leading to outside and tiled floor.

Utility Room

With window to side, range of high and low units, stainless steel sink and drainer, plumbing for washing machine, space for tumble dryer, tiled floor and radiator.

Cloakroom

With low level W/C, pedestal basin, tiled splashbacks, tiled floor and radiator.

First Floor Landing

With window to rear, shelved airing cupboard housing hot water tank, loft access to fully boarded loft with pull down ladder and radiator.

Bedroom One

With windows to front and side filling the room with natural light, built-in wardrobes, wood panelling and radiator.

En-Suite

With window to front, double shower cubicle, low level W/C, basin in vanity unit, fully tiled walls, tiled floor and heated towel rail.

Bedroom Two

With windows to rear and side and radiator.

Bedroom Three

With window to front, laminate floor and radiator.

Bedroom Four

With window to rear and radiator.

Bathroom

With window to side, bath with shower over and shower screen, low level W/C, basin in vanity unit, shaver point, tiled splashbacks, tiled floor, heated towel rail and radiator.

Outside

To the front of the property are paving stones leading to the front door, artificial grass and driveway providing off road parking for two vehicles additionally leading to a single garage with up and over door and power and light connected. To the rear of the property with access through a side gate is a rear tiered garden comprising of patio area ideal for outside entertaining, steps with brick wall leading to lawn, greenhouse, water softener, outside lighting and for privacy and seclusion is fenced all around.

agent

For further details on this property please call us on:
Download PDF Arrange Viewing BOOK A FREE VALUATION FREE MORTGAGE ADVICE

Floorplans For Harrier Way, Stowmarket
EPC For Harrier Way, Stowmarket
Nicholas Estates
Bucks
Beagle
Mortimers
Nicholas Estates
Bucks
Beagle
Mortimers
X

X

Viewing Request