Bed icon  4  Bath icon  2

4 bed House - Detached For Sale
Chamomile Close, Stowupland, Stowmarket
Offers In The Region Of £450,000

  • arrow icon Four Bedrooms
  • arrow icon Detached House
  • arrow icon Kitchen Diner/ Family Room
  • arrow icon En-Suite To Master Bedroom
  • arrow icon Study
  • arrow icon Sealed Unit Double Glazed
  • arrow icon Gas Radiator Central Heating
  • arrow icon Low Maintenance Rear Garden
  • arrow icon Single Garage And Off Road Parking For Three Vehicles
  • arrow icon Village Location

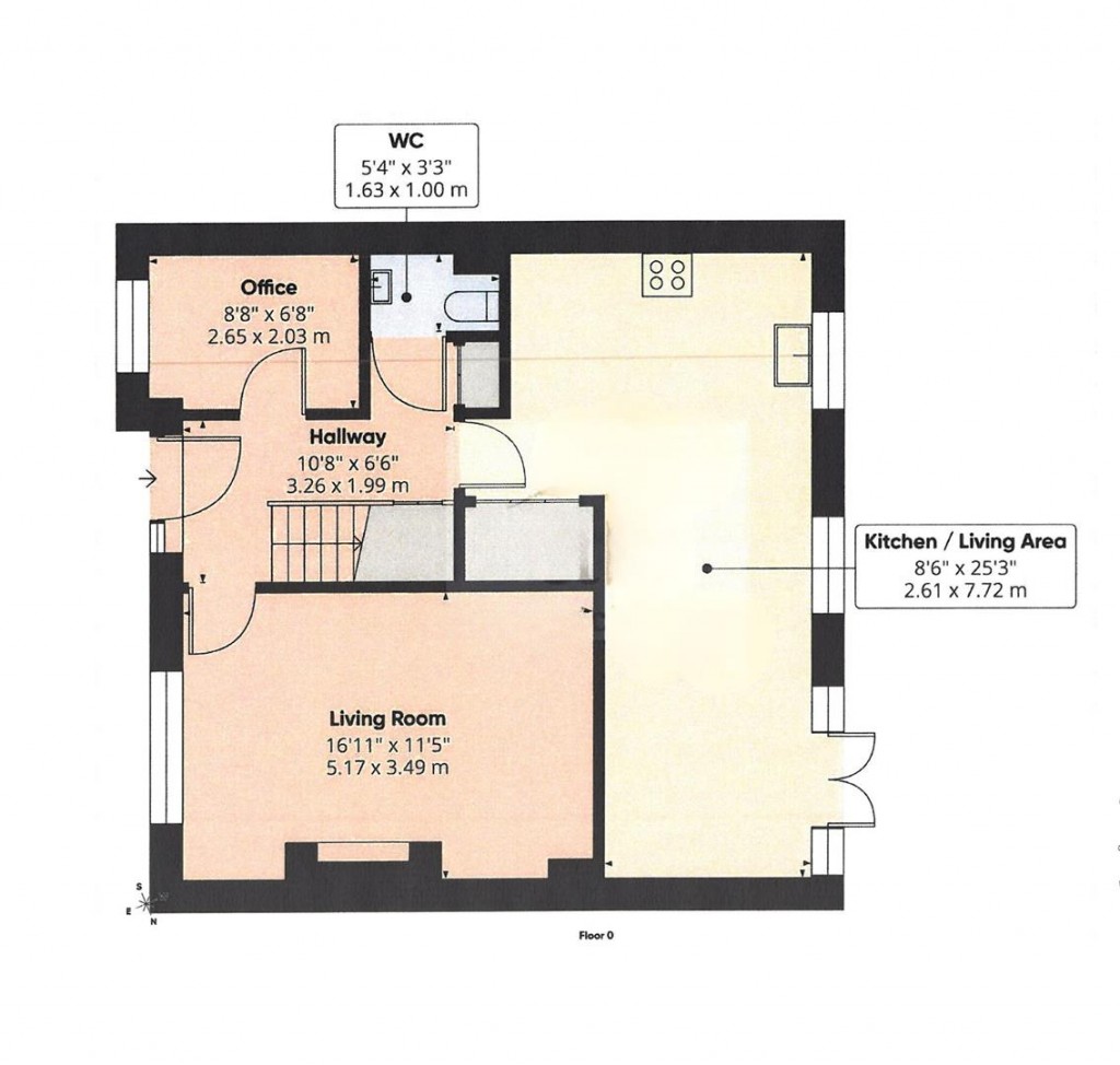
Entrance Hall

With stairs leading to first floor, understairs cupboard, built in cupboard, tiled floor and radiator.

Sitting Room (5.17m x 3.49m)

With window to front, TV point and two radiators.

Kitchen Diner/ Family Room (2.61m x 7.72m)

With two windows to rear, two Velux windows, two full length windows and French doors reading to rear garden ideal for indoor/outdoor entertaining, range of modern high glass high and low units, island with storage, induction hob with extractor hod and fan, eye level electric oven, space for fridge freezer, cupboard housing boiler and two radiators.

Utility Cupboard

Located discreetly within the kitchen featuring high level units, worktop, plumbing for washing machine, space for tumble dryer and tiled floor.

Study (2.65m x 2.03m)

With window to front and radiator.

Cloakroom

With low level W/C, basin, tiled floor and radiator.

First Floor Landing

With loft access to part boarded loft with pull down loft ladder and radiator.

Bedroom One (3.16m x 3.03m)

With window to front, Built-in walk in double wardrobes with glass sliding doors and radiator.

En-Suite (2.19m x 1.65m)

With window to side, double shower cubicle, low level W/C, basin in vanity unit, tiled splashbacks, tiled floor and heated towel rail.

Bedroom Two (2.51m x 3.48m)

With window to front, fitted wardrobes and shelving and radiator.

Bedroom Three (2.78m x 3.01m)

With window to rear and radiator.

Bedroom Four (2.76m x 1.93m)

With window to rear and radiator.

Bathroom (2.38m x 2.53m)

With window to side, bath with mixer tap and shower attachment, shower cubicle, low level W/C, basin in vanity unit, shaver point, tiled splashbacks, tiled floor and heated towel rail.

Outside

To the front of the property are paving stones leading to the front door, hedging and gravel. With a driveway providing off road parking for three vehicles additionally leading to a single garage with up and over door and power and light connected. To the rear of the property with access through a side gate is a rear garden comprising of patio area ideal for outside entertaining, artificial grass entertaining area, raised shrub borders, shed and for privacy and seclusion is fenced all around.

agent

For further details on this property please call us on:
Download PDF Arrange Viewing BOOK A FREE VALUATION FREE MORTGAGE ADVICE

Floorplans For Chamomile Close, Stowupland, Stowmarket Floorplans For Chamomile Close, Stowupland, Stowmarket
EPC For Chamomile Close, Stowupland, Stowmarket
Nicholas Estates
Bucks
Beagle
Mortimers
Nicholas Estates
Bucks
Beagle
Mortimers
X

X

Viewing Request