Bed icon  2  Bath icon  1

2 bed Bungalow - Semi Detached Sold Subject to Contract
Semer Close, Stowmarket
Offers Over £240,000

  • arrow icon Two Bedrooms
  • arrow icon Semi-Detached Bungalow
  • arrow icon Conservatory
  • arrow icon Shower Room
  • arrow icon UPVC Windows
  • arrow icon Gas Radiator Central Heating
  • arrow icon Combi Boiler
  • arrow icon Vacant Possession
  • arrow icon No Upward Chain
  • arrow icon Off Road Parking For Two Vehicles

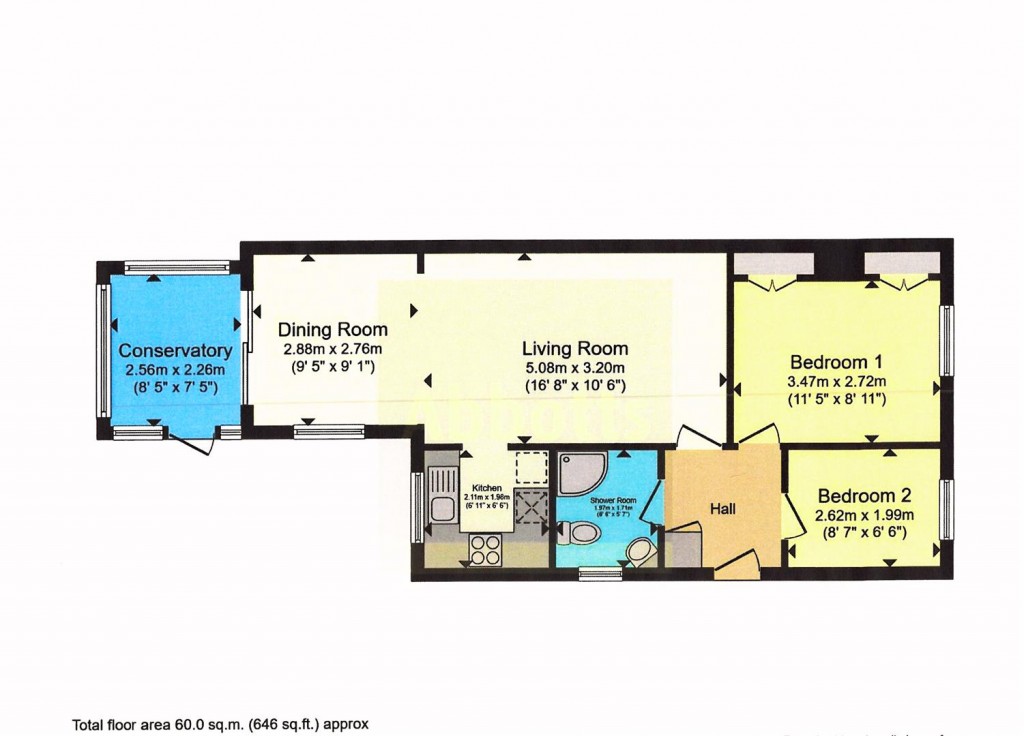
Entrance Hall

With a cupboard housing Combi boiler and loft access to part boarded loft with pull down ladder.

Sitting Room

With TV point and radiator. Archway leading into:-

Dining Room

With window to side and radiator.

Kitchen

With window to rear, range of high and low units, sink and drainer, tiled splashbacks, electric hob with extractor hood and fan, electric oven, space for fridge freezer, plumbing for washing machine, space for tumble dryer and tiled floor.

Conservatory

With windows all around and door leading to outside, laminate floor and radiator.

Bedroom One

With window to front, fitted wardrobes and storage and radiator.

Bedroom Two

With window to front and radiator.

Shower Room

With window to side, double shower cubicle, low level W/C, basin in vanity unit, 1/2 tiled walls, tiled floor and heated towel rail.

Outside

To the front of the property is a block paving driveway providing off road parking for two vehicles and wrought iron gate giving access to bin storage. To the rear of the property with access through a side gate is a rear garden comprising of recently laid block paved area, covered seating area ideal for outside entertaining, artificial lawn, raised shrub borders, raised Koi pond, large shed/Workshop with power and light connected and for privacy and seclusion is fenced all around.

agent

For further details on this property please call us on:
Download PDF Arrange Viewing BOOK A FREE VALUATION FREE MORTGAGE ADVICE

Floorplans For Semer Close, Stowmarket
EPC For Semer Close, Stowmarket
Nicholas Estates
Bucks
Beagle
Mortimers
Nicholas Estates
Bucks
Beagle
Mortimers
X

X

Viewing Request