Bed icon  3  Bath icon  2

3 bed Bungalow - Detached For Sale
Brambles, Harleston, Stowmarket
Offers Over £375,000

  • arrow icon Three Bedrooms
  • arrow icon Bungalow
  • arrow icon Kitchen/Dining Area
  • arrow icon Conservatory
  • arrow icon Cloakroom
  • arrow icon Sealed Unit Double Glazed
  • arrow icon Oil Radiator Central Heating
  • arrow icon Double Garage
  • arrow icon Excellent Size Plot
  • arrow icon Views Over Fields To Rear

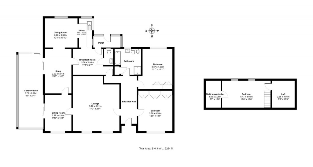
Entrance Hall

With stairs to first floor, understairs cupboard and radiator.

Sitting Room

With two windows to front filling the room with natural light, electric fireplace, two storage units, TV point and two radiators.

Dining Room

With window to front and side brightening the room with natural light and radiator.

Family Room

With patio doors leading to conservatory illuminating the room with natural light and radiator.

Conservatory

With windows all around and patio doors leading to rear garden and three radiators.

Kitchen/Dining Area

With windows to rear and side, range of high and low units, sink and drainer, electric hob, electric double oven and eye level oven, water softener, space for fridge freezer, integrated dishwasher, fully tiled walls, boiler on the floor and radiator. With Dining area with window to rear, pantry, fully tiled walls and radiator.

Cloakroom

With window to rear, low level W/C, pedestal basin, fully tiled walls, vinyl floor and radiator.

Rear Porch

With door leading to outside and vinyl floor.

Bedroom One

With window to front, fitted wardrobes to one wall and radiator.

Bedroom Two

With window to rear, two double fitted wardrobes and radiator.

Bathroom

With window to rear, bath, shower in cubicle, low level W/C, bidet, pedestal basin, shelved airing cupboard housing hot water tank, fully tiled walls, vinyl floor and radiator.

First Floor/Bedroom Three

With two Velux windows to rear, walk in wardrobe and eaves storage.

Outside

To the front of the property is a storm porch over the front door, driveway, mini brick wall, patio, mature hedging and trees, shrubs and double gates leading to further off road parking. To the rear of the property is a rear garden comprising of lawns, mature shrubs and trees, pathway and steps leading to back door , with further shed to the rear with power and light connected, plumbing for washing machine as currently used as utility area and for privacy and seclusion is fenced all around. With double garage with no doors and power and light connected.

agent

For further details on this property please call us on:
Download PDF Arrange Viewing BOOK A FREE VALUATION FREE MORTGAGE ADVICE

Floorplans For Brambles, Harleston, Stowmarket
EPC For Brambles, Harleston, Stowmarket
Nicholas Estates
Bucks
Beagle
Mortimers
Nicholas Estates
Bucks
Beagle
Mortimers
X

X

Viewing Request