Bed icon  3  Bath icon  1

3 bed House - Semi-Detached Sold Subject to Contract
Lavenham Way, Stowmarket
Offers In Excess Of £250,000

  • arrow icon Three Bedrooms
  • arrow icon Semi-Detached House
  • arrow icon Two Reception Rooms
  • arrow icon Conservatory
  • arrow icon Shower Room
  • arrow icon Night Storage Heaters
  • arrow icon Sealed Unit Double Glazed Installed 2023
  • arrow icon Single Garage
  • arrow icon Off Road Parking For Three Vehicles
  • arrow icon Vacant Possession and No Upward Chain

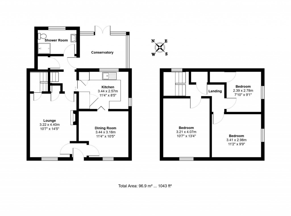
Entrance Porch

Sitting Room

With window to front, understairs cupboard, built-in cupboard, chimney, gas fire and night storage heater.

Dining Room

With window to front and night storage heater.

Kitchen

With windows to rear and side, range of high and low units, stainless steel sink and drainer, space for cooker, space for fridge freezer, plumbing for washing machine, built-in cupboard, pantry, vinyl floor and night storage heater.

Rear Hall

With stairs leading to first floor, shelved airing cupboard housing hot water tank and night storage heater.

Conservatory

With window all around and French doors leading to rear garden, vinyl floor and night storage heater.

Shower Room

With window to rear, walk in shower, low level W/C, basin in vanity unit, fully tiled walls and night storage heater.

First Floor Landing

With loft access and hot water tank.

Bedroom One

With window to front and no heating.

Bedroom Two

With window to side and no heating.

Bedroom Three

With window to side, built-in cupboard and night storage heater.

Outside

To the front of the property is a pathway leading to the front door with lawn, shrubs and fencing. With wrought iron gates opening into a driveway providing off road parking for three vehicles additionally leading to a single garage with opening doors. To the rear of the property with access through a side gate is a rear garden comprising of lawn with pathway either side, hard standing area, trees, summerhouse and 2 sheds.

agent

For further details on this property please call us on:
Download PDF Arrange Viewing BOOK A FREE VALUATION FREE MORTGAGE ADVICE

Floorplans For Lavenham Way, Stowmarket
EPC For Lavenham Way, Stowmarket
Nicholas Estates
Bucks
Beagle
Mortimers
Nicholas Estates
Bucks
Beagle
Mortimers
X

X

Viewing Request