Bed icon  3  Bath icon  2

3 bed House - Mid Terrace Sold Subject to Contract
Wagtail Drive, Stowmarket
Price £240,000

  • arrow icon Three Bedrooms
  • arrow icon Mid Terraced House
  • arrow icon Three Storey Home
  • arrow icon En-Suite To Master Bedroom
  • arrow icon Juliet Balcony
  • arrow icon UPVC Windows
  • arrow icon Gas Radiator Central Heating
  • arrow icon Needs Some Modernisation
  • arrow icon Single Garage En-Bloc and Off Road Parking For One Vehicle
  • arrow icon Vacant Possession and No Upward Chain

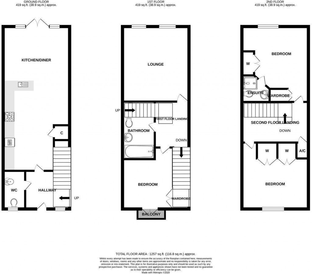
Hallway

With window to front, stairs leading to first floor, laminate floor and radiator.

Kitchen/Family Room (8.05 x 3.78)

With a range of high and low units, stainless steel sink and drainer, matching worktops and splashbacks, gas hob with extractor hood and fan, electric eye level double oven, integrated fridge freezer, integrated dishwasher, plumbing for washing machine, large understairs cupboard, laminate floor and radiator.

Cloakroom

With window to front, low level W/C, pedestal basin, cupboard housing boiler, vinyl floor and radiator.

First Floor Landing

With stairs leading to second floor and radiator.

Sitting Room (4.22 x 3.79)

With two windows to rear filling the room with natural light, TV point and two radiators.

Bedroom Three (2.57 x 2.82)

With Juliet balcony to front, double built-in wardrobe and radiator.

Bathroom

With bath, low level W/C, pedestal basin, tiled splashbacks, vinyl floor and radiator.

Second Floor Landing

With loft access and airing cupboard housing immersion heater mega flo tank.

Bedroom One (3.77 x 4.21)

With window to rear, two built-in double wardrobes, TV point and radiator.

En-Suite

With corner shower cubicle, low level W/C, pedestal basin, shaver point, 1/2 tiled walls and vinyl floor.

Bedroom Two (2.69 x 3.81)

With window to front, built-in triple wardrobe and radiator.

Outside

To the front of the property are paving stones leading to the front door, artificial grass either side with wrought iron fence to front and side. To the rear of the property is a rear garden comprising of artificial grass, gate to rear giving access to single garage En-bloc and off road parking for one vehicle and for privacy and seclusion is fenced all around.

agent

For further details on this property please call us on:
Download PDF Arrange Viewing BOOK A FREE VALUATION FREE MORTGAGE ADVICE

Floorplans For Wagtail Drive, Stowmarket
EPC For Wagtail Drive, Stowmarket
Nicholas Estates
Bucks
Beagle
Mortimers
Nicholas Estates
Bucks
Beagle
Mortimers
X

X

Viewing Request