Bed icon  3  Bath icon  1

3 bed Cottage - Detached For Sale
Forward Green, Stowmarket
Offers Over £330,000

  • arrow icon Three Bedrooms
  • arrow icon Detached Cottage
  • arrow icon Two Reception Rooms
  • arrow icon Utility Room
  • arrow icon Conservatory
  • arrow icon Oil Radiator Central Heating
  • arrow icon Village Location
  • arrow icon Large Shed/Workshop
  • arrow icon Off Road Parking For One Vehicle
  • arrow icon No Upward Chain

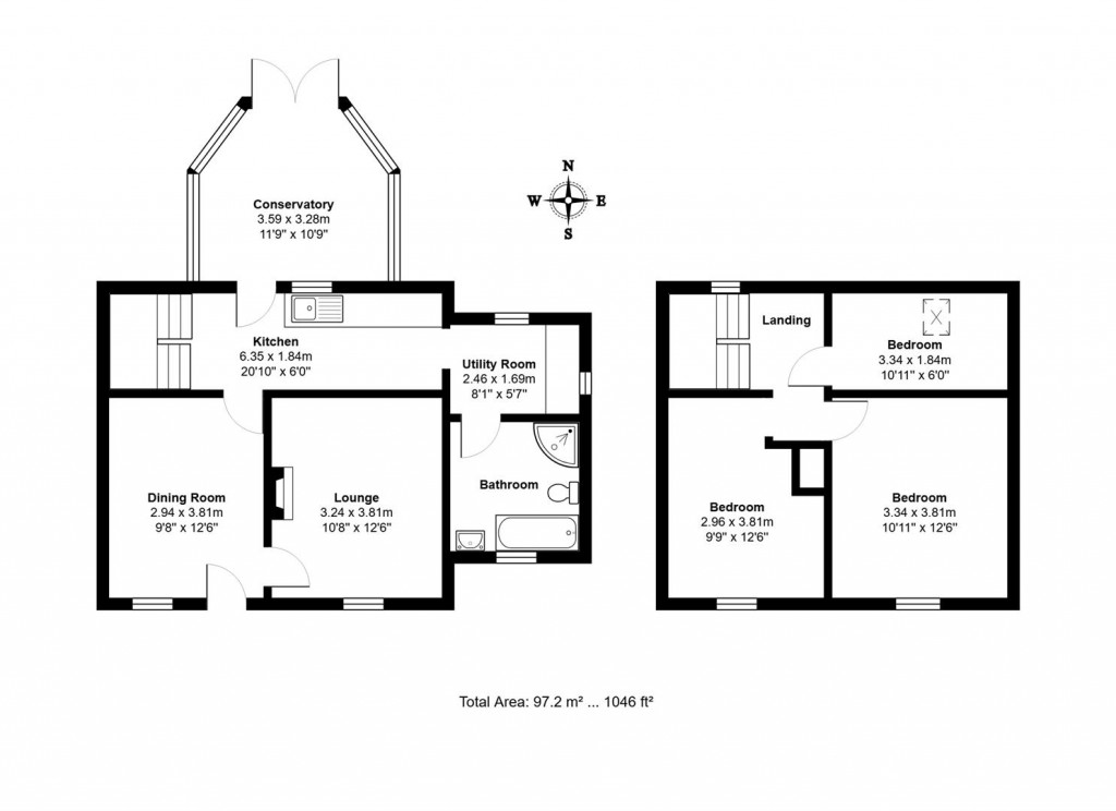
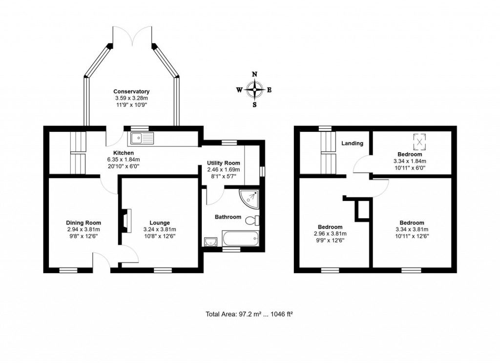
Sitting Room

With window to front, TV point, open fireplace with multi fuel burner and radiator.

Dining Room

With window to front and radiator.

Kitchen

With window to rear, low level units, sink and drainer, space for fridge freezer, space for cooker, stairs leading to first floor, tiled floor and radiator.

Utility Room

With windows to rear and side, plumbing for washing machine, Combi boiler, tiled floor and radiator.

Bathroom

With window to front, roll top bath, corner shower cubicle, low level W/C, pedestal basin, 1/2 tiled walls, tiled floor, radiator and heated towel rail.

Conservatory

With windows all around and French doors leading to rear garden ideal for indoor/outdoor entertaining and tiled floor.

First Floor Landing

With window to rear and loft access.

Bedroom One

With window to front and radiator.

Bedroom Two

With window to front and radiator.

Bedroom Three

With Velux window to rear and radiator.

Outside

To the front of the property is a gravel garden with brick pathway leading to the front door with storm porch, gate, hedging and fenced all around. To the rear of the property with access through a side gate is a rear garden comprising of a patio area with pergola ideal for outside entertaining, lawns, resin pathways leading to large shed/workshop with double opening doors with personnel door to rear and power and light connected and driveway providing off road parking for one vehicle.

agent

For further details on this property please call us on:
Download PDF Arrange Viewing BOOK A FREE VALUATION FREE MORTGAGE ADVICE

Floorplans For Forward Green, Stowmarket
EPC For Forward Green, Stowmarket
Nicholas Estates
Bucks
Beagle
Mortimers
Nicholas Estates
Bucks
Beagle
Mortimers
X

X

Viewing Request