Bed icon  4  Bath icon  2

4 bed Chalet Bungalow - Detached Sold Subject to Contract
Top Road, Rattlesden, Bury St. Edmunds
Offers Over £400,000

  • arrow icon Four Bedrooms
  • arrow icon Chalet Bungalow
  • arrow icon Conservatory
  • arrow icon Wet Room and Bathroom
  • arrow icon UPVC Windows
  • arrow icon Oil Radiator Central Heating
  • arrow icon Solar Panels
  • arrow icon Off Road Parking For Several Vehicles
  • arrow icon In Need Of Modernisation
  • arrow icon Vacant Possession and No Upward Chain

Entrance Hall

With stairs leading to first floor and radiator.

Sitting Room/ Dining Room

With windows to side and rear filling the room with natural light, TV point and three radiators.

Kitchen

With windows to front and side and door leading to outside, range of high and low units, stainless steel sink and drainer, tiled splashbacks, electric hob, eye level electric double oven, space for fridge, vinyl floor and radiator.

Conservatory

With windows all around and patio doors leading to outside ideal for indoor/outdoor entertaining and radiator.

Wet Room

With window to front, shower, low level W/C, basin, airing cupboard, extensively tiled walls, non-slip floor and radiator.

Hallway

Spacious hallway with radiator and leading to first floor.

Bedroom Three

With window to front and radiator.

Bedroom Four

With window to rear and radiator.

First Floor Landing

With built-in storage to one wall.

Bedroom One

With window to rear, built-in wardrobes to one wall and radiator.

Bedroom Two

With window to rear, built-in wardrobes with access to loft, eaves storage and radiator.

Bathroom

With window to front, low level W/C, bath, pedestal basin, shaver point, cupboard housing hot water tank, loft access, extensively tiled walls and radiator.

Outside

To the front of the property is a well maintained garden comprising of lawn, hedges, trees, shrubs and views over fields additionally a driveway providing off road parking for several vehicles, car port with window to rear and utility area with plumbing for washing machine and power and light connected, single garage with up and over door and power and light connected. To the rear of the property is a rear garden comprising of patio area ideal for outside entertaining, well maintained lawn, flowerbeds, brick built outbuilding, mature shrubs and trees. To the side of the property is an oil tank, brick wall, side gate for access and views over fields to rear and for privacy and seclusion is fenced all around.

agent

For further details on this property please call us on:
Download PDF Arrange Viewing BOOK A FREE VALUATION FREE MORTGAGE ADVICE

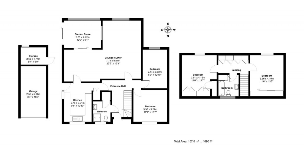
Floorplans For Top Road, Rattlesden, Bury St. Edmunds
EPC For Top Road, Rattlesden, Bury St. Edmunds
Nicholas Estates
Bucks
Beagle
Mortimers
Nicholas Estates
Bucks
Beagle
Mortimers
X

X

Viewing Request