Bed icon  4  Bath icon  1

4 bed House - Detached Sold Subject to Contract
Lindsey Way, Stowmarket
Guide Price £285,000

  • arrow icon Four Bedrooms
  • arrow icon Detached House
  • arrow icon Two Reception Rooms
  • arrow icon Cloakroom
  • arrow icon Sealed Unit Double Glazed
  • arrow icon Gas Radiator Central Heating
  • arrow icon Single Garage
  • arrow icon Off Road Parking For Three Vehicles
  • arrow icon Needs Modernising
  • arrow icon Vacant Possession And No Upward Chain

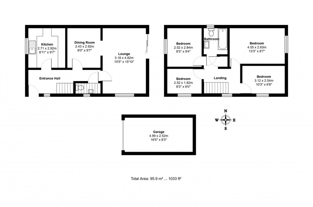
Entrance Hall

With window to front, stairs leading to first floor, understairs storage and radiator.

Sitting Room

With window to front and patio doors leading to rear garden ideal for indoor/outdoor entertaining additionally illuminating the room with natural light, archway leading to dining room, TV point and two radiators.

Dining Room

With radiator.

Kitchen

With window to side, range of high and low units, sink and drainer, tiled splashbacks, space for fridge freezer, space for washing machine, boiler on wall, serving hatch, vinyl floor and radiator.

Cloakroom

With window to front, low level W/C, basin and radiator.

First Floor Landing

With window to side, shelved airing cupboard housing hot water tank and loft access

Bedroom One

With window to side and radiator.

Bedroom Two

With window to side and radiator.

Bedroom Three

With window to front and radiator.

Bedroom Four

With window to front and radiator.

Bathroom

With window to rear, bath with shower over and mixer tap with shower attachment, shower screen, low level W/C, pedestal basin, extensively tiled walls and radiator.

Outside

To the front of the property is a driveway leading to a single garage with up and over door and power and light connected, lawn and trees. To the rear of the property with access through a side gate is a rear garden comprising of paving slabs, lawn, mature shrubs and trees, shed and for privacy and seclusion is walled and fenced all around.

agent

For further details on this property please call us on:
Download PDF Arrange Viewing BOOK A FREE VALUATION FREE MORTGAGE ADVICE

Floorplans For Lindsey Way, Stowmarket
EPC For Lindsey Way, Stowmarket
Nicholas Estates
Bucks
Beagle
Mortimers
Nicholas Estates
Bucks
Beagle
Mortimers
X

X

Viewing Request