Bed icon  3  Bath icon  1

3 bed Bungalow - Detached Sold Subject to Contract
Pippins, Straight Road, Battisford, Stowmarket
Price £455,000

  • arrow icon Three Bedrooms
  • arrow icon Detached Bungalow
  • arrow icon Kitchen/Diner
  • arrow icon Utility Room
  • arrow icon Oil Radiator Central Heating
  • arrow icon Hot Water Tank In Loft
  • arrow icon Karndean Floor
  • arrow icon UVPC Windows
  • arrow icon Double Garage
  • arrow icon Off Road Parking For Four Vehicles

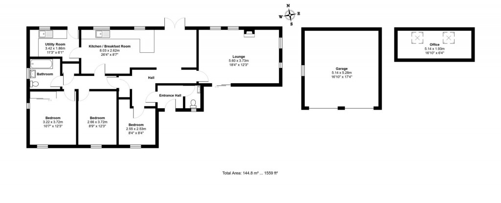
Entrance Hall

With Karndean floor and radiator.

Cloakroom

With window to front, low level W/C, basin in vanity unit, tiled floor and heated towel rail.

Hallway

With built-in cupboard, Karndean floor and radiator.

Sitting Room

With two windows to front, two windows to side and patio doors leading to front illuminating the room with natural light, wood burner, Karndean floor, TV point and two radiators.

Hallway

With shelved airing cupboard, loft access and Karndean floor.

Kitchen/Diner

With two windows to rear and French doors leading to rear ideal for indoor/outdoor entertaining, range of high and low units, butler sink, granite matching worktops and splashbacks, induction hob with extractor hood and fan, eye level electric oven, eye level microwave combi oven, space for American fridge freezer, integrated dishwasher, integrated wine fridge, integrated bins, Karndean floor and heated towel rail.

Utility Room

With window to rear and door leading to outside, range of high and low units, stainless steel sink and drainer, plumbing for washing machine, Karndean floor and radiator.

Bedroom One

With windows to front and side, built-in wardrobe with glass sliding doors and radiator.

Bedroom Two

With window to front, Karndean floor and radiator.

Bedroom Three

With window to front, Karndean floor and radiator.

Bathroom

With window to side, bath with shower over, low level W/C, basin in vanity unit, fully tiled walls, shower boarding and heated towel rail.

Outside

To the front of the property is a shared gravel driveway providing off road parking for four vehicles, double garage with two electric doors, personnel door to rear and office space above. To the side of the property is a side gate leading to rear garden comprising of patio area ideal for outdoor entertaining, lawn, hedging, shrub borders, trees, gate leading to separate fenced off further patio area, views over fields and gate allowing access to fields and For privacy and seclusion is fenced all around.

agent

For further details on this property please call us on:
Download PDF Arrange Viewing BOOK A FREE VALUATION FREE MORTGAGE ADVICE

Floorplans For Pippins, Straight Road, Battisford, Stowmarket
EPC For Pippins, Straight Road, Battisford, Stowmarket
Nicholas Estates
Bucks
Beagle
Mortimers
Nicholas Estates
Bucks
Beagle
Mortimers
X

X

Viewing Request