Bed icon  4  Bath icon  1

4 bed Bungalow - Detached For Sale
Station Road, Bacton, Stowmarket
Offers In Excess Of £320,000

  • arrow icon Detached Bungalow
  • arrow icon Four Double Bedrooms
  • arrow icon Two Reception Rooms
  • arrow icon Sealed Unit Double Glazing
  • arrow icon Oil Radiator Central Heating
  • arrow icon Cloakroom Room & Bathroom
  • arrow icon In Need of Modernisation
  • arrow icon Vacant Possession
  • arrow icon No Upward Chain
  • arrow icon Desirable Village Location

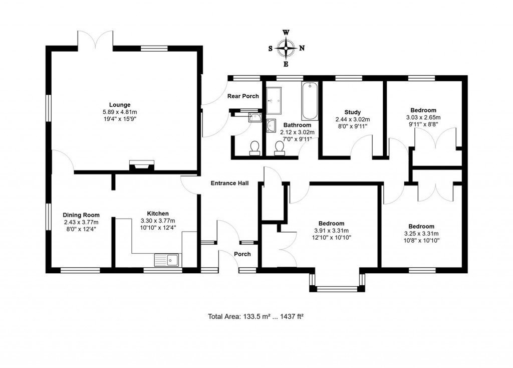
Entrance Porch:

With airing cupboard that houses the hot water tank.

Hallway:

With loft access.

Kitchen:

With window to front, range of high and low level units, worktops, stainless steel sink and drainer and tiled splashbacks. Space for cooker and fridge freezer, plumbing for dishwasher and boiler. Archway leading to:-

Dining Room:

With windows to the front and side and radiator.

Sitting Room:

With windows to the rear and side, French doors opening onto the rear garden and feature fireplace with wood burner inset.

Cloakroom:

With window to rear, low level WC and hand basin.

Rear Porch:

With patio doors to rear and plumbing for washing machine.

Bathroom:

With window to rear, bath, double shower, low level WC, pedestal basin and 1/2 tiled walls.

Bedroom One:

With bay window to front, fitted wardrobe and radiator.

Bedroom Two:

With window to side, fitted wardrobe and radiator.

Bedroom Three:

With window to rear, fitted wardrobe and radiator.

Bedroom Four:

With window to rear and radiator.

Outside:

To the front of the property is a 5 bar gate leading to a driveway providing off road parking for 3 vehicles and single garage with up and over door, power and light connected with personnel door to side. There is also a feature miniature brick wall, shrubs, trees and pond. A side gate leads to the rear garden that comprises of lawn, shrubs and for privacy and seclusion the garden is surrounded by fencing.

agent

For further details on this property please call us on:
Download PDF Arrange Viewing BOOK A FREE VALUATION FREE MORTGAGE ADVICE

Floorplans For Station Road, Bacton, Stowmarket
EPC For Station Road, Bacton, Stowmarket
Nicholas Estates
Bucks
Beagle
Mortimers
Nicholas Estates
Bucks
Beagle
Mortimers
X

X

Viewing Request