Bed icon  3  Bath icon  2

3 bed Chalet Sold Subject to Contract
Oakdene, Kirton
£500,000

  • arrow icon Modernised & Extended Chalet
  • arrow icon Three/Four Bedrooms
  • arrow icon Open Plan Kitchen/Dining Area
  • arrow icon Lounge with Double Sided Fireplace
  • arrow icon Garage & Work Shop
  • arrow icon Popular Village Location

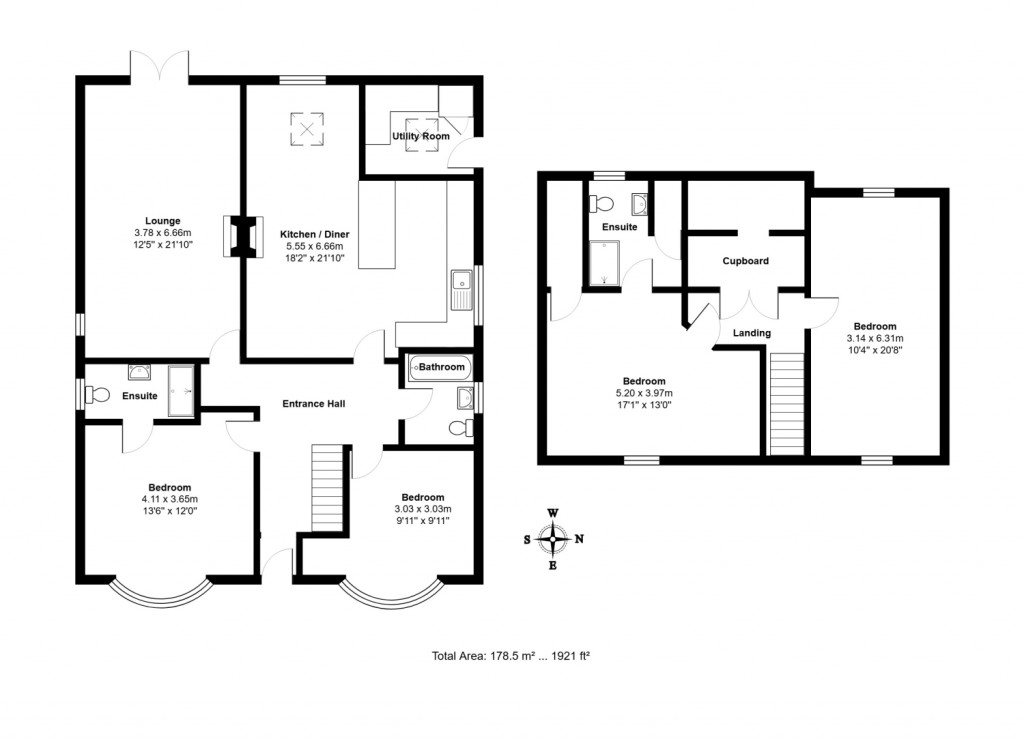
A recently modernised and extended three/four bedroom detached chalet property, situated at the end of quiet cul-de-sac in the picturesque village of Kirton. The accommodation comprises, entrance hall, master bedroom with en-suite shower room, lounge with a feature double sided fireplace with multifuel stove, study/bedroom four, family bathroom, kitchen/dining room also benefitting the double sided fireplace and a utility room. The first floor offers bedroom two with en-suite shower room and bedroom three, both of which are generous double bedrooms. Outside the property is approached via a block paved and resin driveway providing off road parking for several vehicles and leads to the detached garage and attached work shop. To the rear the garden is laid to lawn with mature flowering borders and a paved patio with a part covered pergola including a grape vine and also provides rear access to the work shop & garage.
agent

For further details on this property please call us on:
01394 282 828

Arrange Viewing BOOK A FREE VALUATION FREE MORTGAGE ADVICE
Floorplans For Oakdene, Kirton
EPC For Oakdene, Kirton
Nicholas Estates
Bucks
Beagle
Mortimers
Nicholas Estates
Bucks
Beagle
Mortimers
X

X

Viewing Request