Bed icon  2  Bath icon  1

2 bed Retail Property (High Street) For Sale
Hamilton Road, Felixstowe
£250,000

  • arrow icon Town Centre Location
  • arrow icon Ground Floor Shop & Two Storey Maisonette
  • arrow icon Excellent Investment Opportunity
  • arrow icon Recently Redecorated
  • arrow icon Roof Terrace Area

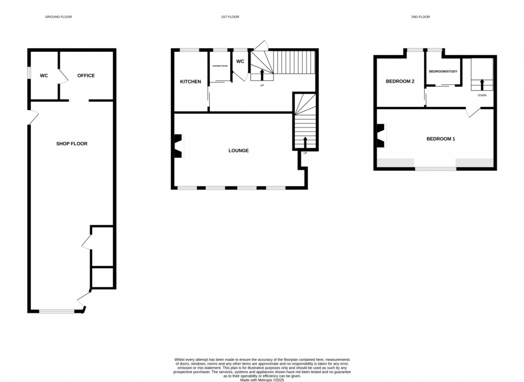
A exciting opportunity to acquire a ground floor commercial unit with a two bedroom maisonette over, ideally situated in a town centre location. The commercial unit offers main shop floor with a office/store room and w.c. The maisonette comprises, ground floor entrance with stairs leading to the first floor landing, providing access to, a generous lounge/diner, kitchen, shower room and separate w/c, with a second flight of stairs leading to the master bedroom, bedroom two and study/bedroom three. Outside the property benefits a roof terrace to the rear. Offering a potential combined income of approx £18,000 per annum. The property is offered with no onward chain.
agent

For further details on this property please call us on:
01394 282 828

Arrange Viewing BOOK A FREE VALUATION FREE MORTGAGE ADVICE
Floorplans For Hamilton Road, Felixstowe
Nicholas Estates
Bucks
Beagle
Mortimers
Nicholas Estates
Bucks
Beagle
Mortimers
X

X

Viewing Request