Bed icon  1  Bath icon  1

1 bed Retirement Property For Sale
Harvest House, Cobbold Road, Felixstowe
£120,000

  • arrow icon Over 55's Development
  • arrow icon Grounds Overlooking the Sea
  • arrow icon One Double Bedroom
  • arrow icon Secure Entry System
  • arrow icon No Onward Chain

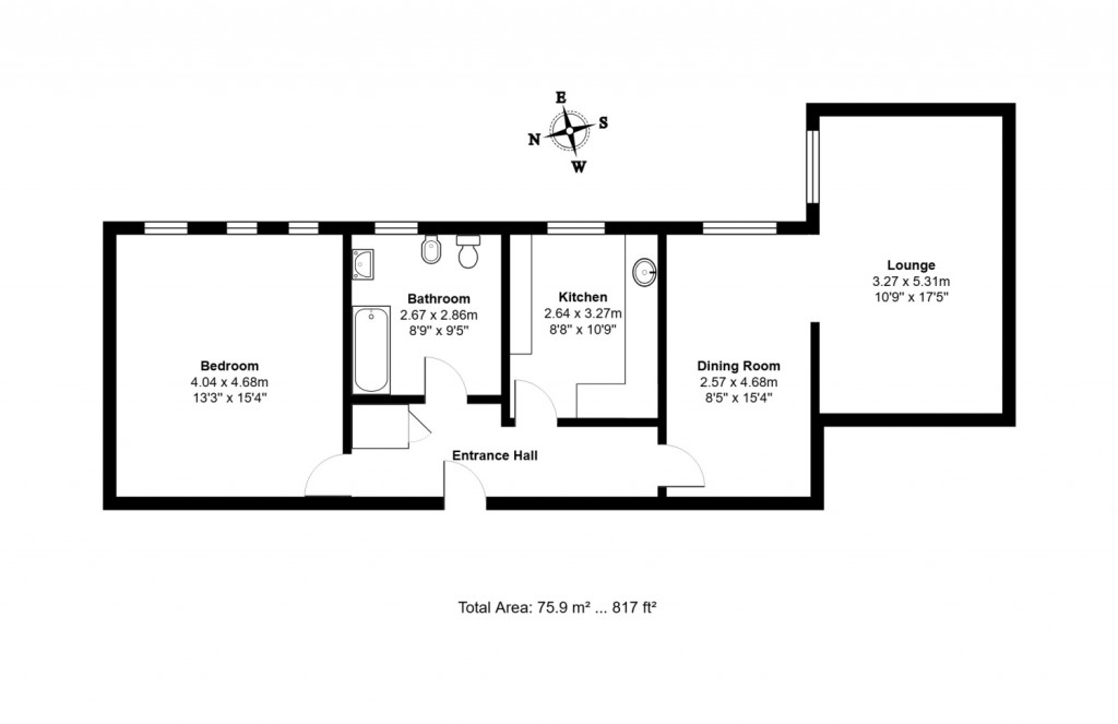
A second floor, one double bedroom, over 55's retirement flat situated in the imposing Harvest House development. The accommodation comprises, communal entrance, with lift and stairs leading to the 2nd floor, hallway, kitchen, bathroom, dining area, lounge and double bedroom. The flat requires some general modernisation throughout. Heating is provided by night storage heaters, the property is securely accessed via a phone entry system. Harvest House further benefits, an onsite residential manager, library, chapel, laundry facilities, a function room and grand hall. The property is offered with no onward chain.
agent

For further details on this property please call us on:
01394 282 828

Arrange Viewing BOOK A FREE VALUATION FREE MORTGAGE ADVICE
Floorplans For Harvest House, Cobbold Road, Felixstowe
EPC For Harvest House, Cobbold Road, Felixstowe
Nicholas Estates
Bucks
Beagle
Mortimers
Nicholas Estates
Bucks
Beagle
Mortimers
X

X

Viewing Request