Bed icon  2  Bath icon  2

2 bed Apartment For Sale
Neptune Square, Ipswich Waterfront
£275,000

  • arrow icon 2 Bedroom 2nd Floor Apartment
  • arrow icon Situated in the Heart of the Waterfront
  • arrow icon No Onward Chain
  • arrow icon South Facing Views from the Balcony
  • arrow icon Double Glazed Throughout
  • arrow icon En Suite and Bathroom
  • arrow icon Electric Heating
  • arrow icon Secure Gated Development

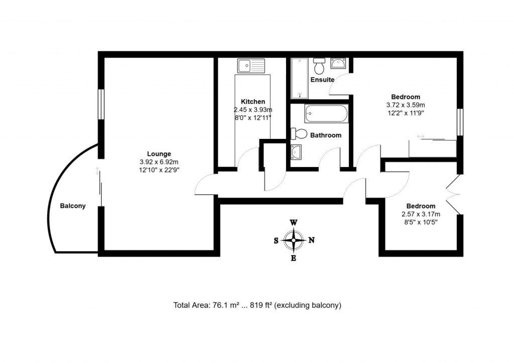
No Onward Chain - With Front facing views of the Waterfront is this 2 Bedroom 2nd Floor Apartment in the popular Neptune Square development. Stunning South Facing views from the Balcony. The apartment is fully Double Glazed and has Electric Heating. The entrance to the development is gated and secure. The layout of the flat comprises of Hallway. Living/Dining room with access to the balcony. Kitchen, Bathroom, Main Bedroom with En suite and further bedroom, Allocated parking space. Situated in the heart of the Waterfront the location gives great access to all of the amenities the area offers with Cafes, Bars and Restaurants. The Railway Station and Town Centre are within walking distance.
agent

For further details on this property please call us on:
01473 215 743

Arrange Viewing BOOK A FREE VALUATION FREE MORTGAGE ADVICE
Floorplans For Neptune Square, Ipswich Waterfront
EPC For Neptune Square, Ipswich Waterfront
Nicholas Estates
Bucks
Beagle
Mortimers
Nicholas Estates
Bucks
Beagle
Mortimers
X

X

Viewing Request