Bed icon  3  Bath icon  1

3 bed Detached For Sale
Brook Lane, Felixstowe
£568,000

  • arrow icon Walking Distance to The Town & Beach Front
  • arrow icon 19th Century Detached House
  • arrow icon Glass Pitched Roof Sun Room
  • arrow icon Open Plan Living Area
  • arrow icon Generous Outbuilding

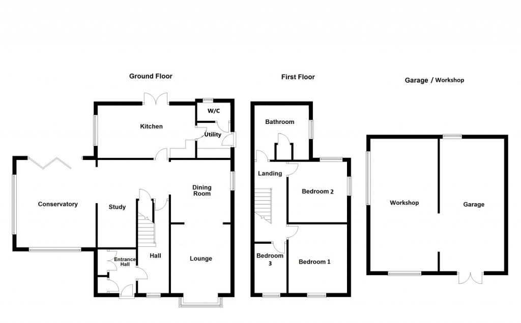
An exceptionally well presented three bedroom detached house dating back to the 19th Century, situated on one of the most desirable roads in Felixstowe with a former blacksmiths forge to the rear garden. The accommodation comprises, entrance hall, hallway, open office area, dining room opening on to the lounge and a stunning glass pitched roof sunroom, with bi-fold doors to the south facing rear garden, kitchen/breakfast room, utility and cloakroom. The first floor offers master bedroom, two further bedrooms and family bathroom. Outside the property sits on an elevated plot with steps leading to the front garden, to the side there's a driveway providing off road parking for several vehicles and a double gate providing access to the rear garden and the former Forge now used as a garage/workshop.
agent

For further details on this property please call us on:
01394 282 828

Arrange Viewing BOOK A FREE VALUATION FREE MORTGAGE ADVICE
Floorplans For Brook Lane, Felixstowe
EPC For Brook Lane, Felixstowe
Nicholas Estates
Bucks
Beagle
Mortimers
Nicholas Estates
Bucks
Beagle
Mortimers
X

X

Viewing Request