Bed icon  7  Bath icon  2

7 bed Terraced Sold Subject to Contract
Holland Road, Felixstowe
£285,000

  • arrow icon Sea Front Location
  • arrow icon Investment/HMO Potential
  • arrow icon Three Storey Town House
  • arrow icon Seven Bedrooms
  • arrow icon Modernising & Updating Required

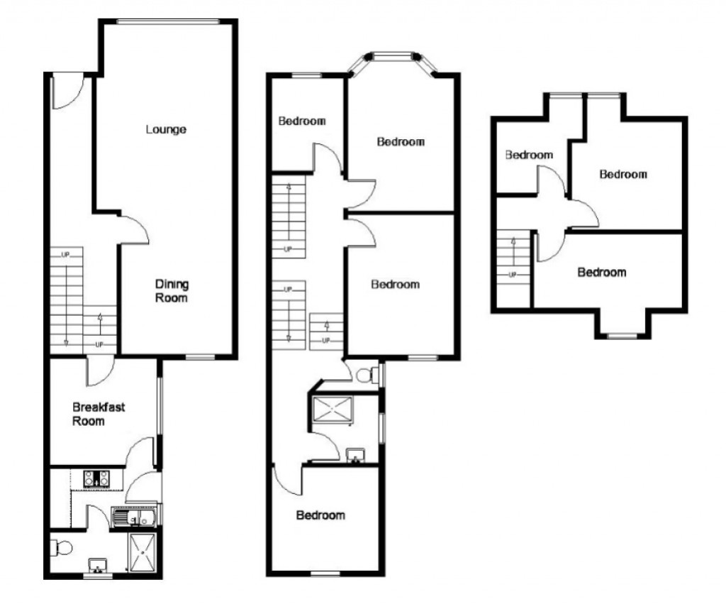
A substantial seven bedroom three storey town house situated within walking distance of the Sea Front and the up and coming Beach Street. The accommodation comprises, entrance hall, lounge/diner, breakfast room, kitchen and downstairs shower room, master bedroom with balcony providing partial sea views, three further bedrooms, shower room and separate W/C. The top floor provides access to three further bedrooms. Outside the property benefits an enclosed courtyard style garden with rear access. The property is offered with no onward chain.
agent

For further details on this property please call us on:
01394 282 828

Arrange Viewing BOOK A FREE VALUATION FREE MORTGAGE ADVICE
Floorplans For Holland Road, Felixstowe
EPC For Holland Road, Felixstowe
Nicholas Estates
Bucks
Beagle
Mortimers
Nicholas Estates
Bucks
Beagle
Mortimers
X

X

Viewing Request