Bed icon  1  Bath icon  1

1 bed Maisonette For Sale
High Street, Felixstowe
Guide Price £185,000

  • arrow icon One Double Bedroom
  • arrow icon Maisonette Flat
  • arrow icon Lounge/Diner
  • arrow icon Allocated Off Road Parking
  • arrow icon Private Enclosed Garden

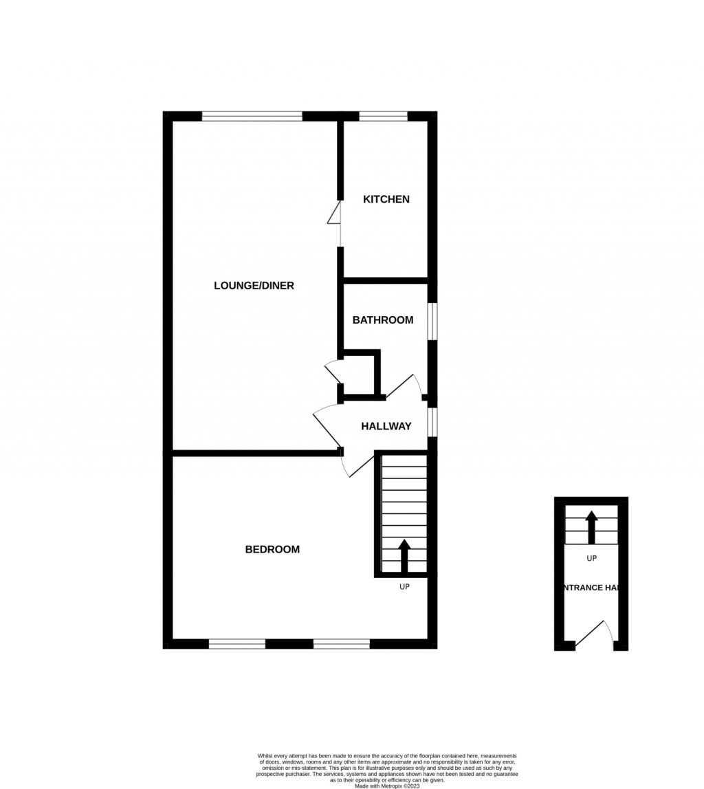
A well presented first floor maisonette situated on Walton High Street, providing convenient access to local shops and facilities. The accommodation comprises, entrance hall with stairs leading to the landing, providing access to lounge, kitchen, bathroom and bedroom. Outside the property benefits one allocated parking space and a private fully enclosed rear garden. Further benefits include uPvc double glazing throughout and gas fired central heating via radiator.
agent

For further details on this property please call us on:
01394 282 828

Arrange Viewing BOOK A FREE VALUATION FREE MORTGAGE ADVICE
Floorplans For High Street, Felixstowe
EPC For High Street, Felixstowe
Nicholas Estates
Bucks
Beagle
Mortimers
Nicholas Estates
Bucks
Beagle
Mortimers
X

X

Viewing Request