Bed icon  2  Bath icon  1

2 bed Flat Sold Subject to Contract
Beacon House, High Road West, Felixstowe
£255,000

  • arrow icon WALKING DISTANCE FROM TOWN CENTRE
  • arrow icon CLOSE TO TRAIN STATION
  • arrow icon GREAT FOR FIRST TIME BUYERS & INVESTORS
  • arrow icon SPACIOUS TWO BEDROOM
  • arrow icon FULLY INTEGRATED KITCHEN

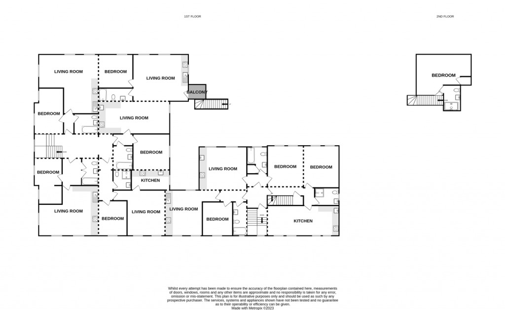
Coming soon to Felixstowe are these beautifully converted 1 & 2 bedroom apartments located walking distance from town centre and train station, comprising 12 one bedroom flats and 3 two bedroom flats. Plot 4 measures approx 679 sq ft and consists of a spacious living room with fully integrated kitchen, two bedrooms, ensuite, and bathroom, allocated off road parking and access to town and train station within minutes. CONTACT OFFICE ON 01394 282828 FOR INTEREST
agent

For further details on this property please call us on:
01394 282 828

Arrange Viewing BOOK A FREE VALUATION FREE MORTGAGE ADVICE
Floorplans For Beacon House, High Road West, Felixstowe
Nicholas Estates
Bucks
Beagle
Mortimers
Nicholas Estates
Bucks
Beagle
Mortimers
X

X

Viewing Request